Městský úřad Žatec
náměstí Svobody 1
438 01 Žatec
Startovací byty pro mladé v bývalé věznici čp. 1925
Startovací byty pro mladé v bývalé věznici čp. 1925
Zpracovatel: Arcom Design, s.r.o., Ing. arch. Libor Habanec
Projektová dokumentace se zabývá řešením budovy čp. 1925, která se nachází skryta před zraky na dvoře přístupném z úzké uličky kolmé na Obránců míru (naproti Komerční bance).
Stávající stav stavby je dosti zanedbaný, odpovídá tomu, že je již delší dobu bez využití. Nicméně stavba byla postavena s ohledem na funkční využití postavena velmi fortelně. Její současný vzhled je však dosti depresivní.
Návrh předpokládá využití stávajících šířek a rytmu okenních otvorů, které vychází z již zmíněného rytmu nosných prvků. Okenní otvory jsou protaženy dolů až po nízké parapety, aby propouštěly dostatek denního světla a fasády působily přívětivě. V přízemí na východní straně jsou vytvořeny větší otvíravé výkladce do kavárny, zásobovací vstup a vstup do domu. Na západní a jižní fasádě je použit v malém rozsahu prvek luxfer, který připomíná původní řešení fasád vězení. Zábradlí v okenních otvorech jsou tvořena nerezovými sítěmi. Střech je v hřebenové části doplněna ateliérovým oknem ve střešní rovině a malými vikýři opláštěnými plechem v barvě použité červené keramické krytiny. Výtahová šachta je symetricky přistavěna k severní fasádě a tvoří uzavřený blok s omítanou fasádou. Fasáda je omítaná v jedné světle šedé barvě s vápenným finálním nátěrem, aby bylo dosaženo autentického historického efektu. Okna budou dřevěná tmavé přírodní dřevo.
Zastavěná plocha 261,4 m2
Obestavený prostor 4 480 m3
Celková užitná plocha objektu 904,6 m2
Počet bytů:
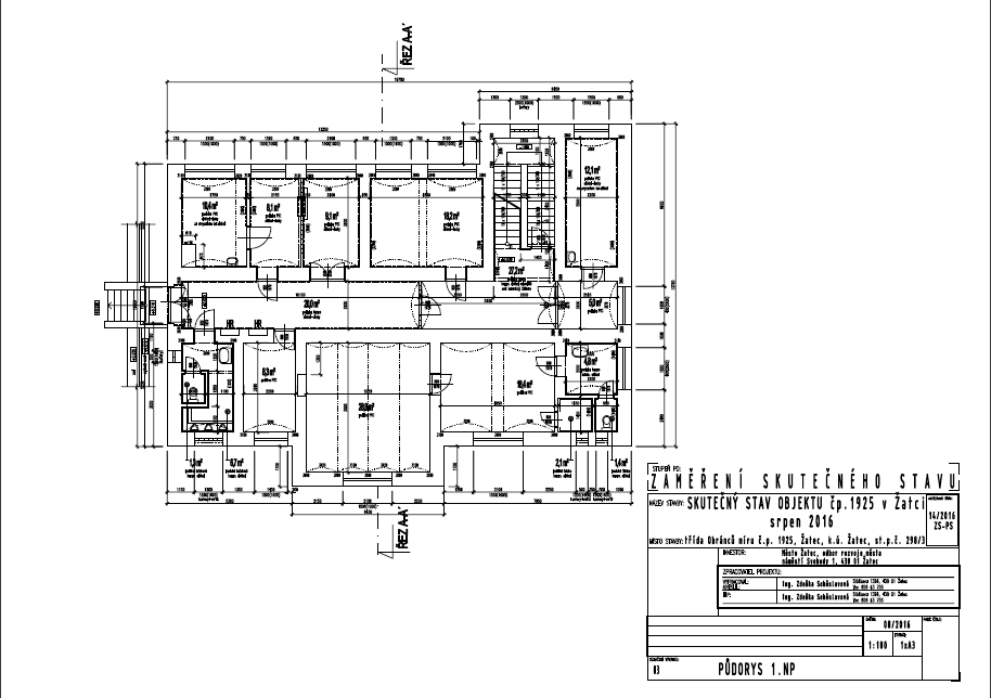
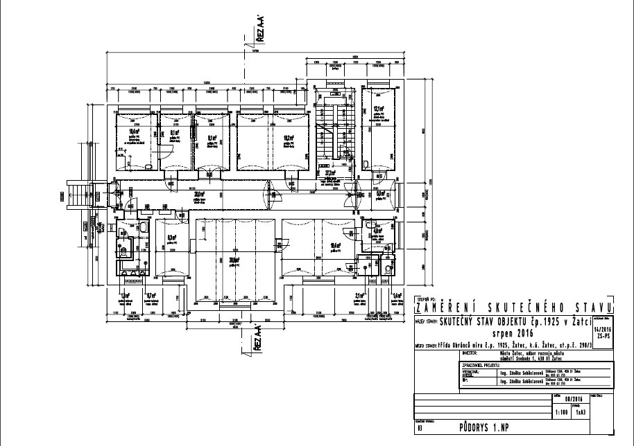
1.NP 1 byt + 1 komerční prostor
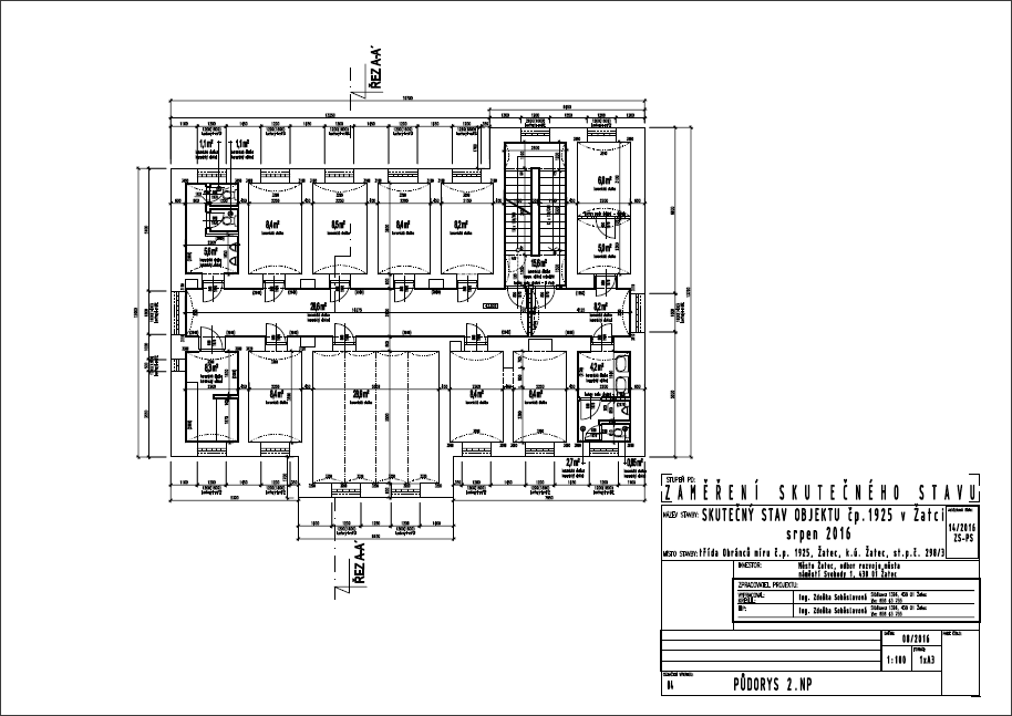
2.NP 4 byty
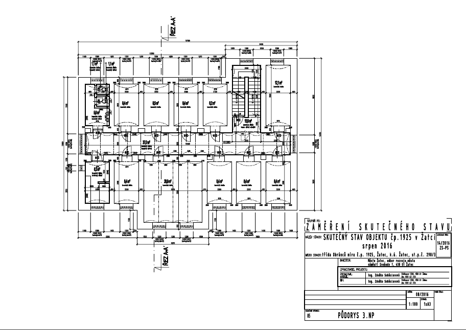
3.NP 4 byty
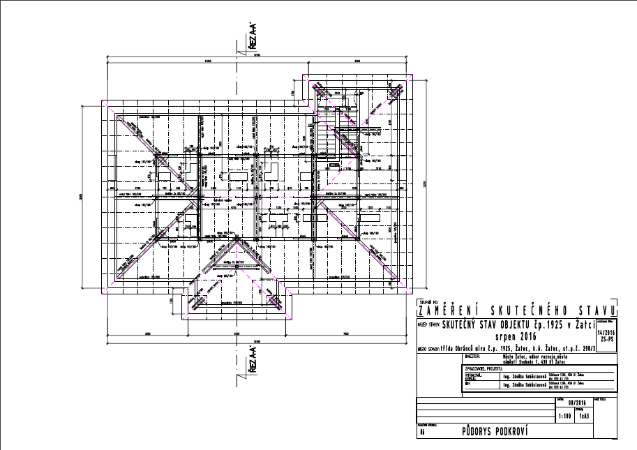
Podkroví 2 byty
Celkem 11 bytů
Situace:
Přílohy
Bývalá věznice 1. NP.png
Bývalá věznice 2. NP.png
Bývalá věznice 3. NP.png
Bývalá věznice Podkroví.png
Datum poslední aktualizace: 4. 1. 2023 16:03

