Městský úřad Žatec
náměstí Svobody 1
438 01 Žatec
Stavba budovy zázemí FK Slavoj Žatec
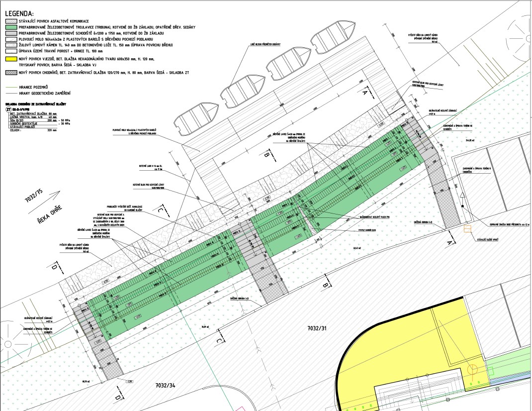
Bude se jednat o stavbu hlavní budovy v areálu fotbalového klubu FK Slavoj Žatec a částečné úpravě a zpřístupnění pravého břehu řeky Ohře.
Stavba budovy zázemí FK Slavoj Žatec
Zhotovitel projektové dokumentace: DESIGNPROJEKT s. r. o.
Předmětem projektové dokumentace je stavba hlavní budovy v areálu fotbalového klubu FK Slavoj Žatec včetně stavby budovy hygienického zázemí se skladem zahradní techniky a dále stavby k nim přidružené (stavba pokladny, zpevněné plochy a komunikace, areálová dešťová kanalizace, stavba oplocení a vybudování dětského hřiště). Částečně dojde k úpravě a zpřístupnění pravého břehu řeky Ohře před hlavní budovou.
Přílohy
Pohledy.jpg
Náplavka u řeky.jpg
Datum poslední aktualizace: 10. 4. 2026 11:14

